看「懵」了!

本文介绍了看「懵」了!,对大家解决问题具有一定的参考价值,需要的朋友们下面随着小编来一起学习吧!


不得不说,杭州这两年越来越流行“盲摇”了。

不久前,杭珹未来中心首开,在没有售楼处、没有样板间,以及不确定的户型图情况下,忽然领证;紧随其后拿证的古墩彩虹轩,直至这次售罄一直保持着无售楼处、无置业顾问、无样板间、登记“自助”的状态。

而在铁路北站板块,有个在建项目也曾在销售初期,经历过无售楼处、无对接销售、无样板间的“三无现象”。

它就是,星创晶晖里。

虽然“三无楼盘”基本都跟红/热挂钩,但它建造品质又会如何呢?

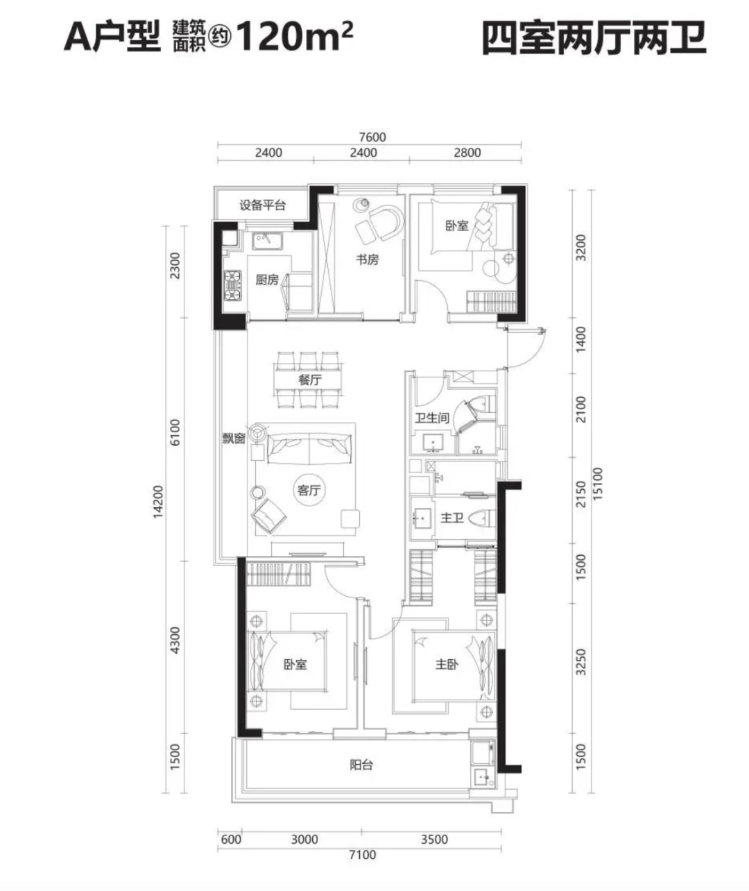
1、120m²户型玄关区域为后砌加气块墙体,强弱电箱开槽后,墙体被凿穿,墙体厚度不足,几乎紧贴暴露于公卫区域,这对后续防水要求较高,如该区域任意一道工序未做到位,就会产生隐患

2、120m²主卫与公卫存在水电同槽,且多套采样户型内多区域存在水电交叉过近的情况

水电同槽 ①

水电同槽 ②

水电交叉 ①

水电过近 ②

3、多套采样户型内,厨房区域开槽露筋,且在103m²户型内存在开槽切断钢筋的情况

4、12多套采样户型内,多区域存在大量横槽(投影)超过50cm规范的情况

5、阳台外立面区域粉刷层破损

1、整体:主体施工已完成,部分楼幢侧面外立面正在施工中。

2、材质/色泽:裙楼钢架已搭建完毕,裙楼以上为浅灰色真石漆+灰色涂料+金属线条组合。

整体:园区土方回填还未完成,整体雏形未见。

地下车库:

主体施工已基本完成;

部分区域顶面、柱子、墙面已完成多次粉刷;

目前少量区域存在积水情况,可能与其排水系统未完工有关;

脚手架未拆除区域顶面,存在一处异常潮湿。

左右滑动查看更多

1、过道/候梯厅:

主体施工已完毕,隔墙已完成,但还未抹灰找平;

顶面水电预埋已完成,水电管材质都为pvc管道;

过道栏杆扶手框架已架设完毕,玻璃面还未搭建,目前挂了安全防护网;

地面还未找平。

2、消防楼梯:

主体搭建已完毕,整个区域墙面、地面、顶面为毛坯状态。

1、本文采集资料为120㎡户型,103㎡、139㎡户型独家谍照可添加圈姐微信(hzyzq003)获取。

2、扫码加圈姐微信入群,参与楼盘答疑,群满400人,解锁下次跑盘福利。

左右滑动查看更多

该套采用户型整体处于水电预埋填埋阶段,填埋区域已挂网;

各空间门洞已搭建门套底板,且板材表面已做三防处理;

室内水电预埋管材为pvc材质,冷热水管只有热水管做了保温处理;

重水区墙面基本采用多孔红砖隔墙,但公卫、厨房外墙等少量区域使用加气块;

顶面、地面处于毛坯状态,都未做抹灰找平。

星创晶晖里,是我跑的第一个星创在建楼盘。

说实话,很少会有楼盘会出现集齐了超规范开横槽、水电同槽(水电交叉过近)、钢筋切断 ... ... 于一身的情况。

等于说,它基本做一步错一步,每一步都没落下。

在现场粗略看,看似没什么问题,但走出施工现场后,它的施工品质是经不起推敲的,甚至在标注完以上问题之后,我都有点“懵”了。

星创到底是如何监管的?这个施工现场为何会被“作”成这样?你的底线到底在哪里?

最后,120m²的业主们还需要重点关注一下,玄关区域强弱电箱预埋的情况,这里的问题不小,后续需要紧盯接下来的每一道施工品质,万一有一道施工不到位,就可能会产生隐患。

跑盘、爆料、找业主群
找圈姐


这篇关于看「懵」了!的文章就介绍到这了,希望我们推荐的答案对大家有所帮助,也希望大家多多支持!